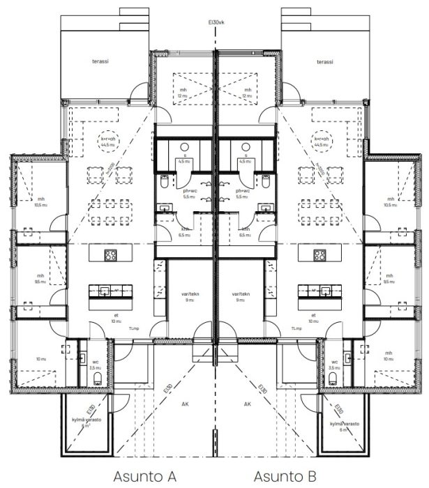
Kuparilammintie 13 A, Myllyoja

image/svg+xml
image/svg+xml

Myyntihinta

390000 €

Asuinpinta-ala

120 m2

Huoneita

5

Kerroksia

1

Rakennusvuosi

2026

Rakennuksen tyyppi

Paritalo

Kaupunginosa / Kaupunki

Myllyoja

Oulu

Paritalokoti rauhallisella pientaloalueella.

Rakennettava paritalokoti sijaitsee omalla tontilla rauhallisella pientaloalueella, lähellä luontoa ja arjen palveluja. Lapsiperheille sijainti on erinomainen. Arvostettu Hintan koulu, Myllyojan uimaranta, Suomen paras skeittiparkki ja ulkoilureitit ovat lähellä.

Kodin on suunnitellut Arkkitehtitoimisto Saika Design, ja se tarjoaa valoisat, korkeat oleskelutilat neljällä makuuhuoneella sekä suuren terassin ja oman pihan. Laadukas keittiö, tyylikäs kylpyhuone, kaukolämpö, lattialämmitys ja oma autopaikka tekevät asumisesta vaivatonta ja mukavaa. Yksitasoinen pohjaratkaisu luo sujuvaa arkea.

Ostamalla kodin tässä vaiheessa voit vaikuttaa sisätilojen väri-, materiaali- ja kalustevalintoihin.

Arkkitehtitoimisto Saika Designin suunnittelemassa paritalossa pohjaratkaisu on suunniteltu sujuvaan arkeen ja perheen tarpeisiin. Tilat ovat avarat ja valoisat, ja neliöt on sijoitettu käytännöllisesti ilman hukkaneliöitä. Yksitasoinen ratkaisu, suuri terassi sekä lämpimät ja kylmät varastot tuovat joustavuutta arkeen ja mahdollistavat monipuolisen asumisen. Oma piha ja rauhallinen ympäristö lisäävät asumisen mukavuutta. Sujuva arki jatkuu myös keittiön, kylpyhuoneen ja teknisten ratkaisujen kuten kaukolämmön ja lattialämmityksen ansiosta.

Tämä alue on ihastuttava. Kuparilammintie 13 sijaitsee rauhallisella pientaloalueella Myllyojalla. Arjen palvelut, kuten Sale ja K-Market, ovat vain puolen kilometrin päässä, joten päivittäiset ostokset hoituvat helposti. Tunnelmalliset iltakävelyreitit ja Myllyojan uimaranta tarjoavat hyvät mahdollisuudet liikkumiseen ja vapaa-ajan viettoon luonnon keskellä. Lähellä olevat koulut ja päiväkodit tekevät paikasta erinomaisen lapsiperheelle. Laanilan lukioon on lyhyt matka. Rauhallinen ympäristö ja vehreät näkymät tekevät tästä viihtyisän ja pitkäaikaisen kodin perheelle tai pariskunnalle.

Kaupat

  • K-Market Myllyoja 450m
  • Sale Myllyoja 450 m
  • Prisma Raksila 3,4 km
  • K-Citymarket Rusko 3 km
  • Kauppakeskus Valkea 4,5 km
  • Kastellin apteekki 1,8 km

Koulut ja päiväkodit

  • Hintan koulu 1 km
  • Jääkärikankaan monitoimitalo (yläkoulu) 1,4 km
  • Laanilan lukio 1,7 km
  • Madetojan musiikkilukio 4,3 km
  • Oulun Lyseon lukio 4,2 km
  • Raksilan lukio 3,6 km
  • Myllyojan päiväkoti 500 m
  • Konservatorio 4,4 km

Julkinen liikenne

  • Lähin bussipysäkki 200 m
  • Juna-asema 3,8 km
  • Linja-autoasema 3,8 km

  • Myllyojan kirjasto 500 m
  • Myllyojan uimaranta 650 m
  • Hovisuon skeittiparkki 1,6 km
  • Oulujoen kirkko 2 km

    Kiinnostuitko?

    Ota yhteyttä!

    Kuparilammintie 13 B, Myllyoja

    image/svg+xml
    image/svg+xml

    Myyntihinta

    390000 €

    Asuinpinta-ala

    120 m2

    Huoneita

    5

    Kerroksia

    1

    Rakennusvuosi

    2026

    Rakennuksen tyyppi

    Paritalo

    Kaupunginosa / Kaupunki

    Myllyoja

    Oulu

    Paritalokoti rauhallisella pientaloalueella.

    Rakennettava paritalokoti sijaitsee omalla tontilla rauhallisella pientaloalueella, lähellä luontoa ja arjen palveluja. Lapsiperheille sijainti on erinomainen. Arvostettu Hintan koulu, Myllyojan uimaranta, Suomen paras skeittiparkki ja ulkoilureitit ovat lähellä.

    Kodin on suunnitellut Arkkitehtitoimisto Saika Design, ja se tarjoaa valoisat, korkeat oleskelutilat neljällä makuuhuoneella sekä suuren terassin ja oman pihan. Laadukas keittiö, tyylikäs kylpyhuone, kaukolämpö, lattialämmitys ja oma autopaikka tekevät asumisesta vaivatonta ja mukavaa. Yksitasoinen pohjaratkaisu luo sujuvaa arkea.

    Ostamalla kodin tässä vaiheessa voit vaikuttaa sisätilojen väri-, materiaali- ja kalustevalintoihin.

    Arkkitehtitoimisto Saika Designin suunnittelemassa paritalossa pohjaratkaisu on suunniteltu sujuvaan arkeen ja perheen tarpeisiin. Tilat ovat avarat ja valoisat, ja neliöt on sijoitettu käytännöllisesti ilman hukkaneliöitä. Yksitasoinen ratkaisu, suuri terassi sekä lämpimät ja kylmät varastot tuovat joustavuutta arkeen ja mahdollistavat monipuolisen asumisen. Oma piha ja rauhallinen ympäristö lisäävät asumisen mukavuutta. Sujuva arki jatkuu myös keittiön, kylpyhuoneen ja teknisten ratkaisujen kuten kaukolämmön ja lattialämmityksen ansiosta.

    Tämä alue on ihastuttava. Kuparilammintie 13 sijaitsee rauhallisella pientaloalueella Myllyojalla. Arjen palvelut, kuten Sale ja K-Market, ovat vain puolen kilometrin päässä, joten päivittäiset ostokset hoituvat helposti. Tunnelmalliset iltakävelyreitit ja Myllyojan uimaranta tarjoavat hyvät mahdollisuudet liikkumiseen ja vapaa-ajan viettoon luonnon keskellä. Lähellä olevat koulut ja päiväkodit tekevät paikasta erinomaisen lapsiperheelle. Laanilan lukioon on lyhyt matka. Rauhallinen ympäristö ja vehreät näkymät tekevät tästä viihtyisän ja pitkäaikaisen kodin perheelle tai pariskunnalle.

    Kaupat

    • K-Market Myllyoja 450m
    • Sale Myllyoja 450 m
    • Prisma Raksila 3,4 km
    • K-Citymarket Rusko 3 km
    • Kauppakeskus Valkea 4,5 km
    • Kastellin apteekki 1,8 km

    Koulut ja päiväkodit

    • Hintan koulu 1 km
    • Jääkärikankaan monitoimitalo (yläkoulu) 1,4 km
    • Laanilan lukio 1,7 km
    • Madetojan musiikkilukio 4,3 km
    • Oulun Lyseon lukio 4,2 km
    • Raksilan lukio 3,6 km
    • Myllyojan päiväkoti 500 m
    • Konservatorio 4,4 km

    Julkinen liikenne

    • Lähin bussipysäkki 200 m
    • Juna-asema 3,8 km
    • Linja-autoasema 3,8 km

    • Myllyojan kirjasto 500 m
    • Myllyojan uimaranta 650 m
    • Hovisuon skeittiparkki 1,6 km
    • Oulujoen kirkko 2 km

      Kiinnostuitko?

      Ota yhteyttä!

      Koivukuja 7 A, Ranta-Kastelli

      image/svg+xml
      image/svg+xml

      Myyntihinta

      475000 €

      Asuinpinta-ala

      99.5 m2

      Huoneita

      4

      Kerroksia

      1

      Rakennusvuosi

      2026

      Rakennuksen tyyppi

      Erillistalo

      Kaupunginosa / Kaupunki

      Ranta-Kastelli

      Oulu

      Viihtyisää arkea

      Ranta-Kastellin

      arvostetulla alueella

      Ranta-Kastellin erillistalokotien suunnittelussa on tehty ajattomia ja kestäviä valintoja. Ne tarjoavat mainiot puitteet niin rauhoittumiselle kuin aktiiviselle elämällekin.

      Unelmapaikalla Ranta-Kastellissa tarjolla tyylikäs talo omalle tontille. Todella hyvä pohjaratkaisu, valoisat oleskelutilat ja keittiö korotetulla sisäkatolla. Olohuoneesta käynti katetulle eteläpuolen kookkaalle terassille. Lämmitysmuotona edullinen ja miellyttävä kaukolämpö vesikiertoisella lattialämmityksellä.

      Kodin ostajalla on mahdollisuus vaikuttaa sisustusmateriaaleihin ja kiintokalusteisiin työmaan aikataulun puitteissa.

      Oma tontti. Hyvänkokoinen tontti jaetaan hallinnanjakosopimuksella puoleksi.

      Nopealla ostajalla mahdollisuus vaikuttaa suunnitelmiin ja pohjaratkaisuun rakennuslupavaiheessa.

      Varainsiirtoveron maksat vain tonttiosuudesta 150 000€

      Arkkitehtitoimisto Arclen suunnittelemissa erillistaloissa pohjaratkaisu on tehty kompaktiin asumiseen, jossa on monenlaisia tiloja erilaisiin arjen tilanteisiin. Pohjaratkaisu on selkeä ja järkevä – neliöt ovat siellä missä niitä tarvitaan, ilman hukkaneliöitä. Arkieteinen, lämmin harrastetila ja lämmin varasto tuovat sujuvan arjen kaupungin keskelle.

      Ranta-Kastelli on Oulun arvostetuin asuinalue. Kaikki oleellinen on kävely- tai lyhyen ajo- tai bussimatkan päässä. S-Market Kastelli on risteyksen toisella puolella ja kohta rakennettava uusi Kastellin liikekeskus tulee kivenheiton päähän eli arjen hankinnat hoituvat ilman autoon hyppäämistä. Oulujoen rannan kävelytie houkuttelee lenkille, kävelylle tai vain hengähtämään veden äärelle. OYSin läheisyys tekee tästä erityisen houkuttelevan terveydenhuollon ammattilaiselle. Läheisessä Kastellin monitoimitalossa on päiväkoti, peruskoulu, lukio ja aikuislukio sekä kansalaisopisto, kirjasto ja nuorisotilat.

      Tästä ei sijainti enää parane.

      Kaupat

      • K-Market Kastelli 200m
      • S-Market Kastelli 500 m
      • Prisma Raksila 2,2 km
      • K-Citymarket Raksila 2,2 km
      • Kauppakeskus Valkea 3,2 km
      • Kastellin apteekki 600m

      Koulut ja päiväkodit

      • Kastellin lukio ja peruskoulu 1,1 km
      • Madetojan musiikkilukio 3,1 km
      • Oulun Lyseon lukio 3,1 km
      • Laanilan lukio 2,5 km
      • Raksilan lukio 2,4 km
      • Kastellin päiväkoti 750m
      • Merikotkan päiväkoti 2,1 km
      • Konservatorio 3,4 km

      Julkinen liikenne

      • Lähin bussipysäkki 240 m
      • Juna-asema 2,6 km
      • Linja-autoasema 2,4 km

        Kiinnostuitko?

        Ota yhteyttä!

        Koivukuja 7 B, Ranta-Kastelli

        image/svg+xml
        image/svg+xml

        Myyntihinta

        475000 €

        Asuinpinta-ala

        99.5 m2

        Huoneita

        4

        Kerroksia

        1

        Rakennusvuosi

        2026

        Rakennuksen tyyppi

        Erillistalo

        Kaupunginosa / Kaupunki

        Ranta-Kastelli

        Oulu

        Viihtyisää arkea

        Ranta-Kastellin

        arvostetulla alueella

        Ranta-Kastellin erillistalokotien suunnittelussa on tehty ajattomia ja kestäviä valintoja. Ne tarjoavat mainiot puitteet niin rauhoittumiselle kuin aktiiviselle elämällekin.

        Unelmapaikalla Ranta-Kastellissa tarjolla tyylikäs talo omalle tontille. Todella hyvä pohjaratkaisu, valoisat oleskelutilat ja keittiö korotetulla sisäkatolla. Olohuoneesta käynti katetulle eteläpuolen kookkaalle terassille. Lämmitysmuotona edullinen ja miellyttävä kaukolämpö vesikiertoisella lattialämmityksellä.

        Kodin ostajalla on mahdollisuus vaikuttaa sisustusmateriaaleihin ja kiintokalusteisiin työmaan aikataulun puitteissa.

        Oma tontti. Hyvänkokoinen tontti jaetaan hallinnanjakosopimuksella puoleksi.

        Nopealla ostajalla mahdollisuus vaikuttaa suunnitelmiin ja pohjaratkaisuun rakennuslupavaiheessa.

        Varainsiirtoveron maksat vain tonttiosuudesta 150 000€

        Arkkitehtitoimisto Arclen suunnittelemissa erillistaloissa pohjaratkaisu on tehty kompaktiin asumiseen, jossa on monenlaisia tiloja erilaisiin arjen tilanteisiin. Pohjaratkaisu on selkeä ja järkevä – neliöt ovat siellä missä niitä tarvitaan, ilman hukkaneliöitä. Arkieteinen, lämmin harrastetila ja lämmin varasto tuovat sujuvan arjen kaupungin keskelle.

        Ranta-Kastelli on Oulun arvostetuin asuinalue. Kaikki oleellinen on kävely- tai lyhyen ajo- tai bussimatkan päässä. S-Market Kastelli on risteyksen toisella puolella ja kohta rakennettava uusi Kastellin liikekeskus tulee kivenheiton päähän eli arjen hankinnat hoituvat ilman autoon hyppäämistä. Oulujoen rannan kävelytie houkuttelee lenkille, kävelylle tai vain hengähtämään veden äärelle. OYSin läheisyys tekee tästä erityisen houkuttelevan terveydenhuollon ammattilaiselle. Läheisessä Kastellin monitoimitalossa on päiväkoti, peruskoulu, lukio ja aikuislukio sekä kansalaisopisto, kirjasto ja nuorisotilat.

        Tästä ei sijainti enää parane.

        Kaupat

        • K-Market Kastelli 200m
        • S-Market Kastelli 500 m
        • Prisma Raksila 2,2 km
        • K-Citymarket Raksila 2,2 km
        • Kauppakeskus Valkea 3,2 km
        • Kastellin apteekki 600m

        Koulut ja päiväkodit

        • Kastellin lukio ja peruskoulu 1,1 km
        • Madetojan musiikkilukio 3,1 km
        • Oulun Lyseon lukio 3,1 km
        • Laanilan lukio 2,5 km
        • Raksilan lukio 2,4 km
        • Kastellin päiväkoti 750m
        • Merikotkan päiväkoti 2,1 km
        • Konservatorio 3,4 km

        Julkinen liikenne

        • Lähin bussipysäkki 240 m
        • Juna-asema 2,6 km
        • Linja-autoasema 2,4 km

          Kiinnostuitko?

          Ota yhteyttä!

          Koivukuja 5 A , Kastelli

          image/svg+xml
          image/svg+xml

          Myyntihinta

          444900 €

          Asuinpinta-ala

          99 m2

          Huoneita

          4

          Kerroksia

          1

          Rakennusvuosi

          Rakennuksen tyyppi

          OKT

          Kaupunginosa / Kaupunki

          Kastelli

          Oulu

          Ennakkomarkkinoinnissa huippupaikalta Kastellin ytimessä kahden asunnon erillistalokokonaisuus. Lähietäisyydeltä löytyy kaikki palvelut ja Oulun keskusta ihan vieressä.

          Unelmapaikalla Kastellissa tarjolla tyylikäs talo omalle tontille. Todella hyvä pohjaratkaisu, valoisat oleskelutilat ja keittiö korotetulla sisäkatolla, tunnelmaa tuo takka. Olohuoneesta käynti katetulle eteläpuolen kookkaalle terassille. Lämmitysmuotona edullinen ja miellyttävä kaukolämpö vesikiertoisella lattilämmityksellä. Nykytekniikan ansiosta asuminen on helppoa sekä vaivatonta ja mikä tärkeintä, mm. lämmityskulut saadaan pysymään maltillisina nyt ja tulevaisuudessa.

          Kodin Asunnon ostajalla on mahdollisuus vaikuttaa sisustusmateriaaleihin ja kiintokalusteisiin työmaan aikataulun puitteissa. Kodin yhteyteen tulee kahden auton autokatos, jonka yhteydessä myös lämmintä varastotilaa.

          Oma tontti. Hyvänkokoinen tontti jaetaan hallinnanjakosopimuksella puoleksi.

          Rakennamme sinulle täysin valmiin kodin! Hinta sisältää talon avaimet käteen -periaatteella, maatyöt, piha-alueen nurmikon, asfaltoinnin piha-alueelle, rakennusluvat, sekä vesi-, viemäröinti- ja sähköliittymien liittymismaksut.

          Nopealla ostajalla mahdollisuus vaikuttaa suunnitelmiin ja pohjaratkaisuun rakennuslupavaiheessa.

          Varainsiirtoveron maksat vain tonttiosuudesta 150 000€

          Ole yhteydessä niin katsotaan olisiko tässä teidän uusi koti!

            Kiinnostuitko?

            Ota yhteyttä!

            Lepolantie 2 B

            image/svg+xml
            image/svg+xml

            Myyntihinta

            375000 €

            Asuinpinta-ala

            123 m2

            Huoneita

            4

            Kerroksia

            1

            Rakennusvuosi

            2023

            Rakennuksen tyyppi

            Paritalo

            Kaupunginosa / Kaupunki

            Perävainio

            Oulu

            Halutulle Perävainion omakotitaloalueelle rakentuu hieno paritalokokonaisuus omalle tontille. Kävelymatkan päähän rakentuu oulunportin palvelut ja vierestä kulkee Oulun yksi pääpyöräilyreiteistä.

            Asunnossa todella käytännöllinen pohjaratkaisu, jossa otettu huomioon arjen tarpeet. Erillinen arkieteinen, iso kodinhoitohuone ja tilavat pesutilat. 4 makuuhuonetta mahdollistavat isommankin perheen asunnon ja antavat mahdollisuuksia etätyötilaksi.

            Tontille muodostuu iso etelään ja länteen avautuva oleskelupiha. Saman katon alle tulee 2 auton katos ja iso lämmin varasto. Asunnot luovutetaan täysin valmiina asukkaille, kulkualueet asfaltoituna ja nurmi kylvettynä sekä julkisivut maalattuna. Kylpyhuoneessa 2 suihkua ja hienosti hieman erilleen suunniteltu talon toinen wc. Saunan ja pesuhuoneen välissä tyylikäs lasiseinä. Kokonaisuuden kruunaa iso yhtenäinen keittiö ja olohuonetila. Olohuoneen isoista ikkunoista avautuu näkymä terassille ja omalle oleskelupihalle.

              Kiinnostuitko?

              Ota yhteyttä!

              Katajakuja 1 B , Oulunsalo

              image/svg+xml
              image/svg+xml

              Myyntihinta

              285000 €

              Asuinpinta-ala

              111.5 m2

              Huoneita

              4

              Kerroksia

              1

              Rakennusvuosi

              2023

              Rakennuksen tyyppi

              OKT

              Kaupunginosa / Kaupunki

              Oulunsalo

              Oulu

              Ennakkomarkkinoinnissa huippupaikalta oulunsalon ytimessä kahden asunnon erillistalokokonaisuus. Lähietäisyydeltä löytyy koulu, päiväkoti ja muutkin arjen palvelut.

              Kodin suunnittelussa on kiinnitetty huomiota toimivaa arkea silmällä pitäen. Tilaratkaisut ovat käytännöllisiä ja selkeitä. Avarassa kodissa on yhdistetty keittiö, ruokailu ja olohuonetila. Olohuoneesta tila jatkuu luontevasti katetulle terassille, johon mahtuu sijoittamaan terassipöydän.

              Sisäänkäynnin yhteydessä on erillinen arkieteistila, jonka ansiosta kurakelitkään eivät aiheuta murhetta. Makuuhuoneita on neljä, joten niissä on mahdollisuuksia vaikka erilliseksi etätyöhuoneeksi. Sauna ja kylpyhuone muodostavat upean rentoutumispaikan. Kokolasiseinä yhdistää saunan ja kylpyhuoneen avaraksi kokonaisuudeksi. Pesuhuoneessa 2 suihkua ja hieman erilleen sijoitettu wc ja allas.

              Kodin Asunnon ostajalla on mahdollisuus vaikuttaa sisustusmateriaaleihin ja kiintokalusteisiin työmaan aikataulun puitteissa. Lämmitysjärjestelmänä on miellyttävä vesikiertoinen lattialämmitys poistoilmalämpö pumpulla. Nykytekniikan ansiosta asuminen on helppoa sekä vaivatonta ja mikä tärkeintä, mm. lämmityskulut saadaan pysymään maltillisina nyt ja tulevaisuudessa. Kodin yhteyteen tulee kahden auton autokatos, jonka yhteydessä myös lämmintä varastotilaa.

              KOHDE VUOKRATONTILLA! Mahdollisuus lunastaa/ostaa tontti myös itselle. Tontti jaetaan hallinnanjakosopimuksella kahtia.

              Rakennamme sinulle täysin valmiin kodin! Hinta sisältää talon avaimet käteen -periaatteella, maatyöt, piha-alueen nurmikon, hienosorastuksen kulkualueille, rakennusluvat, sekä vesi-, viemäröinti- ja sähköliittymien liittymismaksut.

              Nopealla ostajalla mahdollisuus vaikuttaa suunnitelmiin ja pohjaratkaisuun rakennuslupavaiheessa.

                Kiinnostuitko?

                Ota yhteyttä!

                Katajakuja 1 A , Oulunsalo

                image/svg+xml
                image/svg+xml

                Myyntihinta

                285000 €

                Asuinpinta-ala

                111.5 m2

                Huoneita

                4

                Kerroksia

                1

                Rakennusvuosi

                2023

                Rakennuksen tyyppi

                OKT

                Kaupunginosa / Kaupunki

                Oulunsalo

                Oulu

                Ennakkomarkkinoinnissa huippupaikalta oulunsalon ytimessä kahden asunnon erillistalokokonaisuus. Lähietäisyydeltä löytyy koulu, päiväkoti ja muutkin arjen palvelut.

                Kodin suunnittelussa on kiinnitetty huomiota toimivaa arkea silmällä pitäen. Tilaratkaisut ovat käytännöllisiä ja selkeitä. Avarassa kodissa on yhdistetty keittiö, ruokailu ja olohuonetila. Olohuoneesta tila jatkuu luontevasti katetulle terassille, johon mahtuu sijoittamaan terassipöydän.

                Sisäänkäynnin yhteydessä on erillinen arkieteistila, jonka ansiosta kurakelitkään eivät aiheuta murhetta. Makuuhuoneita on neljä, joten niissä on mahdollisuuksia vaikka erilliseksi etätyöhuoneeksi. Sauna ja kylpyhuone muodostavat upean rentoutumispaikan. Kokolasiseinä yhdistää saunan ja kylpyhuoneen avaraksi kokonaisuudeksi. Pesuhuoneessa suihku, wc ja allas.

                Kodin Asunnon ostajalla on mahdollisuus vaikuttaa sisustusmateriaaleihin ja kiintokalusteisiin työmaan aikataulun puitteissa. Lämmitysjärjestelmänä on miellyttävä vesikiertoinen lattialämmitys poistoilmalämpö pumpulla. Nykytekniikan ansiosta asuminen on helppoa sekä vaivatonta ja mikä tärkeintä, mm. lämmityskulut saadaan pysymään maltillisina nyt ja tulevaisuudessa. Kodin yhteyteen tulee kahden auton autokatos, jonka yhteydessä myös lämmintä varastotilaa.

                KOHDE VUOKRATONTILLA! Mahdollisuus lunastaa/ostaa tontti myös itselle. Tontti jaetaan hallinnanjakosopimuksella kahtia.

                Rakennamme sinulle täysin valmiin kodin! Hinta sisältää talon avaimet käteen -periaatteella, maatyöt, piha-alueen nurmikon, hienosorastuksen kulkualueille, rakennusluvat, sekä vesi-, viemäröinti- ja sähköliittymien liittymismaksut.

                Nopealla ostajalla mahdollisuus vaikuttaa suunnitelmiin ja pohjaratkaisuun rakennuslupavaiheessa.

                  Kiinnostuitko?

                  Ota yhteyttä!

                  Lepolantie 2 A

                  image/svg+xml
                  image/svg+xml

                  Myyntihinta

                  349000 €

                  Asuinpinta-ala

                  117 m2

                  Huoneita

                  4

                  Kerroksia

                  1

                  Rakennusvuosi

                  2023

                  Rakennuksen tyyppi

                  Paritalo

                  Kaupunginosa / Kaupunki

                  Perävainio

                  Oulu

                  Halutulle Perävainion omakotitaloalueelle rakentuu hieno paritalokokonaisuus omalle tontille. Kävelymatkan päähän rakentuu oulunportin palvelut ja vierestä kulkee Oulun yksi pääpyöräilyreiteistä.

                  Asunnossa todella käytännöllinen pohjaratkaisu, jossa otettu huomioon arjen tarpeet. Erillinen arkieteinen, iso kodinhoitohuone ja tilavat pesutilat. 3 makuuhuonetta mahdollistavat isommankin perheen asunnon ja antavat mahdollisuuksia etätyötilaksi.

                  Tontille muodostuu iso etelään ja länteen avautuva oleskelupiha. Saman katon alle tulee 2 auton katos ja iso lämmin varasto. Asunnot luovutetaan täysin valmiina asukkaille, kulkualueet asfaltoituna ja nurmi kylvettynä sekä julkisivut maalattuna. Kylpyhuoneessa suihkutila ja hienosti hieman erilleen suunniteltu talon toinen wc. Saunan ja pesuhuoneen välissä tyylikäs lasiseinä. Keittiö suunniteltu hieman erilleen saarekkeella rajaten. Kokonaisuuden kruunaa iso yhtenäinen olohuone/ruokailutila. Olohuoneen isoista ikkunoista avautuu näkymä terassille ja omalle oleskelupihalle.

                    Kiinnostuitko?

                    Ota yhteyttä!

                    Mäntyläntie 2B

                    image/svg+xml
                    image/svg+xml

                    Myyntihinta

                    309000 €

                    Asuinpinta-ala

                    118 m2

                    Huoneita

                    5

                    Kerroksia

                    1

                    Rakennusvuosi

                    2022

                    Rakennuksen tyyppi

                    Paritalo

                    Kaupunginosa / Kaupunki

                    Ylikylä

                    Kempele

                    Tämä Ylikylän alueella sijaitseva ja modernilla ulkoasulla ihastuttava yksikerroksinen paritaloasunto kutsuu nauttimaan rauhallisesta arjesta, viihtyisästä asuinympäristöstä, valoisasta ja luonnonläheisestä tunnelmasta, lukuisista liikunta mahdollisuuksista sekä nopeista kulkuyhteyksistä -tässä se on uusi kotisi!

                    Kodin suunnittelussa on kiinnitetty huomiota toimivaa arkea silmällä pitäen. Tilaratkaisut ovat käytännöllisiä ja selkeitä. Avarassa kodissa on avokeittiöön saumattomasti yhdistyvä viihtyisä oleskelutila, joka kylpee valossa suurten maisemaikkunoiden ansiosta. Olohuoneesta tila jatkuu luontevasti katetulle terassille, jossa voi viettää yhteistä aikaa perheen tai ystävien kesken -kesästä nauttien.

                    Kotiin on kaksi sisäänkäyntiä: kodinhoitohuoneesta saat näin samalla kätevän arkieteisen, jonka ansiosta kurakelitkään eivät aiheuta murhetta. Makuuhuoneita on neljä, ja yhteen makuuhuoneista on liitetty vaatehuone. Sauna ja kylpyhuone mudostavat upean rentoutumispaikan. Kokolasiseinä yhdistää saunan ja kylpyhuoneen avaraksi kokonaisuudeksi. Viimeisen silauksen ylellisyyttä kotiin tuovat huolella valitut, tyylikkäät pintamateriaalit, laadukkaat kodinkoneet sekä jokaisessa huoneessa olevat kiinteät ledivalot.

                    Lämmitysjärjestelmänä on miellyttävä vesikiertoinen lattialämmitys vesi-ilmalämpöpumpulla. Nykytekniikan ansiosta asuminen on helppoa sekä vaivatonta ja mikä tärkeintä, mm. lämmityskulut saadaan pysymään maltillisina nyt ja tulevaisuudessa. Kodin yhteyteen tulee kahden auton autokatos, jonka yhteydessä myös lämmintä varastotilaa.

                    TÄHÄN PÄÄSEE MUUTTAMAAN HETI! Hinta sisältää tonttiosuuden, talon avaimet käteen -periaatteella, maatyöt, piha-alueen nurmikon, asfaltin kulkuteille, rakennusluvat, sekä vesi-, viemäröinti- ja sähköliittymien liittymismaksut.

                      Kiinnostuitko?

                      Ota yhteyttä!